深圳市厚沃电气科技有限公司
电话:0755-28102916
手机:13826521162
联系人:王生
邮箱:hwdq2011@163.com
网址 : www.szhouwo.com
地址:深圳市龙华区福城街道茜坑南路1号深圳市利恒盛工业园C栋五楼
“配电箱”,也叫配电柜,是电动机控制中心的统称。配电箱是按电气接线要求将开关设备、测量仪表、保护电器和辅助设备组装在封闭或半封闭金属柜中或屏幅上,构成低压配电装置。

一、用途
XL-21 、XRM101 系列配电箱,适用于户内三相五线制低压配电系统中,额定电压为交流220/ 380V、额定电流为16A~630A 及以下、额定频率50Hz,作为接受和分配电能使用。产品具有防漏电、防浪涌、过载、短路保护等功能。
可应用于大户型住宅、别墅、写字楼等民用建筑,商场、酒店等商用设施以及工矿企业、体育场馆、医院、学校等公共场所。

二、使用条件
正常使用条件
环境温度:-15℃~+45℃, 24h 内平均温度不超过+35℃
大气条件:空气清洁,最高温度为+45℃时相对湿度不得超过50%。
在较低温度时, 允许有较大的相对湿度;例如+20℃时相对湿度为90%。但因考虑到由于温度的变化,有可能会偶然地产生适度的凝露。
污染等级:3 ;海拔高度:安装场地的海拔不得超过2000m。应安装在无剧烈震动和冲击及其不足以腐蚀电器元件的场所。安装位置应水平,倾斜度不超过5o。
特殊使用条件:如果配电箱在异于上述规定的正常使用条件下使用,用户应在订货时提出并与公司协商一致。
三、型号编制说明


四、使用特点
XL-21 、XRM101 系列配电箱(以下简称配电箱)箱体采用优质冷轧钢板通过焊接成型、强度好,箱体不变形、不开裂,金属表面磷化处理后采用静电粉末喷涂进行防护,抗腐蚀能力强。
元件安装组装后全部为绝缘导线或母排配线,元件通过滑动板导轨与安装板连接、部分产品可带电更换开关;配套新型PE、N 专用端子,接线简单、安全可靠。
箱面框采用防护性能较好的二层门形式、为一体式抽出结构。箱面可采用斜边面框与公司产品保持风格一致,并可实现外观套色需要。元件安装组与箱面框整体装配,通过抽出式结构实现深度调节功能。箱体可根据用户要求设计进出线敲落孔。
五、主要技术参数
额定工作电压:220/380V
额定绝缘电压:AC250/690V5.3
额定冲击耐受电压:6KV/8KV5.4
额定频率:50Hz5.5
额定电流:16A~630A
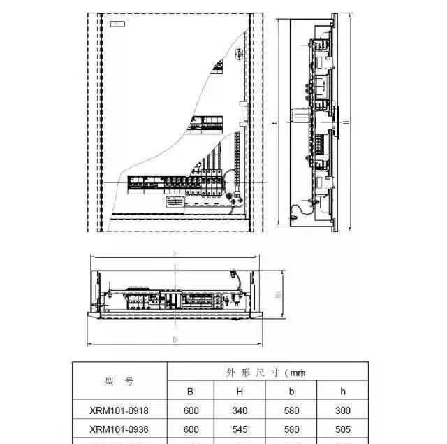
六、外形及安装尺寸



七、包装、储运、安装、使用及维修
(1)包装、储运
产品整体运输时按公司《包装、储运的一般要求》执行。在箱芯箱面组与箱体分体运输时, 箱面框背靠背两两配对, 通过螺钉将甲面框导轨与乙面框支架紧固连接运输。配电箱在安装前应放置于干燥、清洁的库房中妥善保管。
(2)安装
安装前先将面板内螺钉拧下,取下面板,并拆下盘芯。根据接线需要将箱体开孔以备引入导线。将墙内的穿线管插入箱体内出头5mm,并将箱体嵌入墙内。箱体不能凸出或凹进墙面。将盘芯按原位装好。分别将电源线和用电设备的导线按要求分别正确接入电气元件内上下插口,并将螺钉拧紧,具有足够的持久压力。接地应可靠连接。安装接线完毕,应根据系统图检查接线是否正确。用螺钉将面板固定, 调整开关高度及左右位置, 并将二层覆板试开闭2~4 次,开关手柄凸出二层门不大于8mm。检查开关手柄操作是否灵活可靠。
(3)维修
配电箱应由专业人员进行维修。更换主开关务必先切断电源,但可带电更换支路开关。更换主开关:松动主开关上口的螺钉,将开关进线从开关口取出。松动开关下口全部螺钉。松动开关固定导柜左侧安装螺钉(不要将螺钉拧掉) 。将开关向上推、退出安装板。将损坏开关卸下并更换合格的开关。将开关固定导柜滑板按原位向下推入位。将主开关的电源线插入开关孔内,拧紧开关上、下口的螺钉,应具有足够的持久压力。拧紧开关固定导轨滑板左侧螺钉,更换完毕。更换支路开关。将与待更换支路开关固定在一起的整排开关全部分断。松动待更换支路开关下口的螺钉,将开关出线从开关口取出。松动与待更换开关一起横排固定的支路开关上口的全部螺钉。松动该横排支路开关左右两侧的固定螺钉(不要将螺钉拧掉) 。将支路开关安装导轨滑板向下移出。更换相应的支路开关。将支路开关安装导轨滑板插入卡槽向上推到上止点,紧固该排支路开关左右两侧的固定螺钉。将电器设备所用的导线按照电路图分别接入开关下口。将开关上、下口的螺钉全部拧紧,并应有足够的持久压力,支路开关更换完毕。

八、测试项目及测试步骤
外观及结构检查配电箱壳体外表面,一般应喷涂无眩目反光的覆盖层,表面不得有起泡、裂纹或流痕等缺陷; 门应能在不小于90°的角度内灵活启闭; 母线应无毛刺、锤痕,接触面平整,主辅电路接线正确,导线截面、颜色、标志及相序应符合要求; 标志、符号及铭牌应正确、清晰、齐全且易于辨认,安装的位置应正确
元器件选择与安装配电箱内电器元件及辅件辅件的额定电压、额定电流、使用寿命、接通和分断能力、短路强度及安装方式等方面应适合指定的用途; 电器元辅件辅件的安装应便于接线,维修和更换,需要在装置内部操作调整和复位的元件应易于操作;指示灯、按钮和导线的颜色应符合图纸中的规定。
保护电路连续性试验首先应检查保护电路各连接处的连接情况是否良好, 然后测量主接地端子与保护电路任一点之间的电阻值,应小于0.01Ω。通电操作试验试验前需先检查装置的内部接线,当所有接线正确无误后在辅助电路分别通以额定电压的85%和110%的条件下,各操作5 次,所有电器元件的动作显示均应符合电路图的要求,且各个电器元件动作灵活。
介电性能试验(工频耐压试验)相间、相对地、辅助电路对地之间的试验电压为国家标准中规定的试验电压值。带电部件和绝缘材料制成或覆盖的外部操作手柄进行试验时, 装置框架不接地, 将手柄用金属箔裹缠,然后在金属箔与带电部件之间施加1.5 倍的国家标准规定的相间的试验电压值。